抽屉式阻火器型号:ZGB-T
产品介绍: 抽屉式阻火器是用来阻止易燃气体、液体的火焰蔓延回火而引起爆炸的安全装置。通常使用在输送或排放易燃易爆气体的储罐或管线上。
如火炬、加热燃烧系统、石油气体回收系统或其它易燃气体系统。其主要功能是允许易燃易爆的气体通过,对外界传入管道的火焰起有阻止与窒息作
用。抽屉式阻火器是用于安装原油、汽油、煤油、柴油、芳烃、硫等各类油品或其它化工物料的固定顶式储罐上。阻火器是用来阻止易燃气体蒸汽的
火焰向外蔓延的安全装置。通常与呼吸阀配套或单独使用,也可适用内浮顶式油罐的通气管上。由一种能够通过气体的、具有许多细小通道或缝隙的
固体材料(阻火元件)所组成。要求阻火元件的缝隙或通道尽量小,因而当火焰进入后,被阻火元件分成许多细小的火焰流,由于传热作用(气体被
冷却)和器壁效应,火焰流猝灭。
抽屉式阻火器工作原理:阻火器是由能够通过气体的许多细小、均匀或不均匀的通道或孔隙的固体材质所组成,对这些通道或孔隙要求尽量的小,小
到只要能够通过火焰就可以。这样火焰进入阻火器后,就分成许多细小的火焰流被熄灭。火焰能够被熄灭的机理是器壁效应和传热作用。
抽屉式阻火器主要性能:
1、阻爆性能合格,连续13次阻爆性能试验每次均能阻火。
2、耐烧性能合格,耐烧试验1小时无回火现象。
3、壳体水压试验合格。本产品结构合理,重量轻、耐腐蚀。易检修,安装方便。
抽屉式阻火器特点及技术参数:
|
阻火芯材料:不锈钢波纹板 适用介质:气体、液体 压力等级:1.6~6.4MPa 尺寸范围:DN50~DN600 壳体材料:碳钢、不锈钢 密封件材质;耐油石棉橡胶、聚四氟乙烯 环境温度: ≤480℃ |
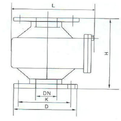
抽屉式阻火器尺寸及结构示意图:PNJ1.0MPa
|
DN |
L |
H |
K |
D |
Nⅹd |
重量 |
|
50 |
250 |
274 |
Φ110 |
Φ140 |
4×18 |
12 |
|
80 |
295 |
310 |
Φ150 |
Φ165 |
8×18 |
20 |
|
100 |
338 |
330 |
Φ170 |
Φ205 |
8×18 |
24 |
|
150 |
420 |
368 |
Φ225 |
Φ260 |
8×22 |
42 |
|
200 |
495 |
455 |
Φ280 |
Φ315 |
8×22 |
55 |
|
250 |
500 |
465 |
Φ335 |
Φ375 |
12×22 |
75 |
抽屉式阻火器维修保养:
为了确保阻火器的性能达到安全使用目的,对阻火器应定期性进行检查,保养。阻火器每半年检查一次,检查阻火层芯子是否堵塞,变形,腐蚀等。
发现被堵塞的阻火层芯子应清洗干净,确保芯子上的每个孔眼畅通,对于变形和腐蚀的阻火层应更换。重新安装阻火层芯子时,应保证结合面严密
不得漏气 .
上海南石是专业的阻火器生产厂家,公司生产的产品:呼吸阀、阻火器、阻火透气帽、防火真空压力帽、铝合金圆球阀、铝合金单法兰球阀、
卸油口、双门底阀、量油孔等系列配套附件。
订货须知:(国家标准)一、A:产品名称、型号、公称通径B:介质及温度、压力范围C:是否有附件、交货期、特殊要求等以便我们的为您正确选型。
二、若已经由设计单位选定我公司的阻火器型号,请您根据阻火器参数直接与我们销售中心订购。
三、当您使用的场合非常重要或环境比较复杂时,请您提供设计图纸和详细参数,我们的工程师专家会专心为您审核与分析。
四、以上价格均为虚价,有意者请联系我们。我们可以为您提供专业的解决方案,包括设计、定做、成套、运行、服务。我们一直致力于阻火器行业领
域的领导者,将为您提供最新的阻火器知识、服务、技术顾问。如有任何疑问,您可以致电给我们,我们一定会尽心尽力为您提供优质的服务。通过密切
关注客户需求与应用体验,把握市场导向:通过高强度的研发投入,通过科学管理和文化塑造,提升组织能力;通过高度重视和持续改进,让质量和服务
成为我们的品牌标志。
欢迎您访问我们的网站【http://www.shhxfcj.com】,如有任何疑问.您可以致电给我们,我们一定会尽心尽力为您提供优质的服务。
电话:021-67130176。







