产品说明:全自动清洗过滤器主要由滤筒、不锈钢楔型滤网、压差开关,时间继电器、气动排污阀等部分组成。液体由入口流进,经滤
网过滤后,从出口流出。各种工业循环水系统:如钢铁、电站系统、化工系统、电子、食品、造纸、粮业等工业水循环再利用。
全自动清洗过滤器工作原理:
全自动清洗过滤器主要由滤筒、不锈钢楔型滤网、压差开关,时间继电器、气动排污阀等部分组成。液体由入口流进,经滤网过滤后,从
出口流出。
手动控制:将控制器置于手动工作状态,按清污按钮进行清污;按排污按钮进行排污。
自动控制:将控制器置于自动工作状态,当进出口压差达到预定值时,系统自动对螺纹进行清洗,在清洗结束进行排污,排污结束后,系
统恢复到初始状态。
应用范围:
1、 各种工业循环水系统:如钢铁、电站系统、化工系统、电子、食品、造纸、粮业等工业水循环再利用;
2、 民用供水系统;
3、 冷却水、冷冻水、冷却塔等循环系统;
4、 中央空调系统;
5、 热交换系统;
6、 空调、采暖、锅炉等集中供热循环水系统;
7、 废水处理:污水处理厂三级处理,减少细滤系统的成本;
8、 润滑油、洗涤液、化工溶剂及其它类似悬浮液粗滤和精滤;
9、 其它过滤需要,特别适用于24小时不停机的工况中。
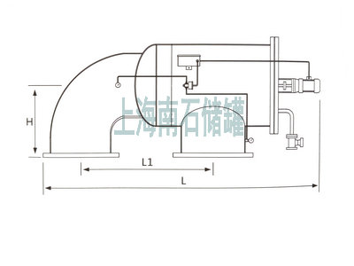
全自动管道过滤器结构图
全自动管道过滤器产品特点:
1、 单机最大流量:82-1036m³/h;
2、 过滤精度:100-3000μm;
3、 可根据客户要求或工况定制滤网;
4、 可在过滤的同时对滤网进行清洁,不中断过滤介质的供应;
5、 各项操作参数可自主调节;
6、 可对设备电机进行过流保护;
7、 拆卸方便,维修性能良好;
8、 管线连接方式为法兰连接,可根据客户要求来选择接口方式和大小。





