产品名称:带呼(吸)接管阻火呼吸阀
特点及性能:
带接管阻火呼吸阀是装在室内固定储罐顶上的接管阻火呼吸作用,用于可回收气体储罐,如有氮气封顶储罐,它可直接从氮气罐内吸入氮气,也
可接储罐内的废氮回收,真正做到了高效、节能、环保。该阀可代替氮封装置。它能对石油储罐内外压差进行自动调节,其性能可靠、稳定,完全
符合石油工业部SY7511-87标准。
带接管阻火呼吸阀的适用范围:阻火呼吸阀适用于储存内点低于28。C的甲类油品和闪点低于100。C乙油品,如汽苯、煤油、轻柴油、厚油等油
品及性质相同的化工产品储罐。
技术参数:
|
型号 |
HXF-2 |
防爆等级 |
ⅡB |
|
规格 |
DN80 |
螺帽螺栓 |
20# 304 |
|
壳体材质 |
铸钢 |
密封垫片 |
金属垫片 |
|
阻火层材质 |
304 304L 316 316L |
环境温度 |
–30℃~+350℃ |
|
正压阀盘材质 |
L2 A3 PTFE |
连接方式 |
法兰连接 |
|
负压阀盘材质 |
L2 A3 PTFE |
法兰标准 |
国标 |
|
正压阀盘压力 |
+36mmH2O~+1000mmH2O |
||
|
负压阀盘压力 |
-20mmH2O~-50mmH2O |
||
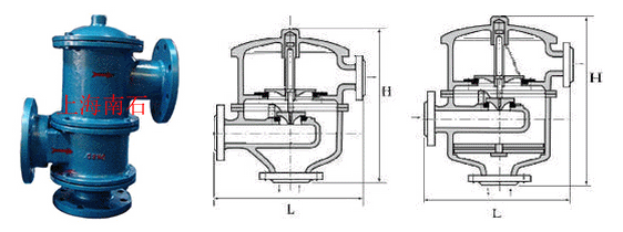
带接管阻火呼吸阀外形及结构图:

法兰连接尺寸:
|
公称通径 DN(mm) |
安装尺寸(mm) |
||||
|
H |
H1 |
H2 |
L |
M-h |
|
|
50 |
255 |
110 |
140 |
310 |
4×12 |
|
100 |
480 |
170 |
205 |
450 |
4×16 |
|
150 |
547 |
225 |
260 |
450 |
8×16 |
|
200 |
658 |
280 |
315 |
650 |
8×16 |
|
250 |
705 |
335 |
370 |
850 |
12×16 |
订货时请注明产品名称,型号,规格。





