U型管道过滤器的用途、和结构尺寸
U型管道过滤器是输送介质管道上不可缺少的一种装置,通常安装在减压阀、泄压阀、定水位阀或其它设备的进口端,用来消除介质中的杂质,以保护阀门及设备的正常使用。当流体进入置有一定规格滤网的滤筒后,其杂质被阻挡,而清洁的滤液则由过滤器出口排出,当需要清洗时,只要将可拆卸的滤筒取出,处理后重新装入即可,广泛用于蒸汽、空气、水、油品等系统管道中,保护各种计量仪器、泵机、阀门、蔬水器等设备。压力损失小、流通面积大抗污性强、排污方便。
U型管道过滤器主要材料及性能规范:
阀体:碳钢、不锈钢;
滤网盖:碳钢、不锈钢;
滤芯网:不锈钢;
垫片:柔性石墨;
连接尺寸:法兰连接;
公称压力PN:1.0-2.5(MPa);
工作温度℃:≤350;
滤网目数:20~150;
适用介质:蒸汽、空气、水、油。
U型管道过滤器产品特点:
1、过滤精度高,可根据客户需求配置过滤网的精细度。
2、工作原理简单、结构也不复杂,容易安装、拆卸和维护。
3、设备易损件少,无耗材,运行维护费用低,操作管理简单。
4、稳定生产工艺流程,保护仪器仪表和机械设备,维护生产的安全和稳定。
5、滤网采用不锈钢双层网结构坚固耐用具有结构先进、流阻小、排污方便等特点。
U型管道过滤器尺寸:
|
公称通径(DNmm) |
L |
H |
H1 |
B1/B2 |
D |
D1 |
D2 |
N-M |
|
|
焊 接 体 |
15 |
240 |
200 |
140 |
ZG1/2" |
95 |
65 |
45 |
4-M12 |
|
20 |
240 |
200 |
140 |
ZG1/2" |
105 |
75 |
55 |
4-M12 |
|
|
25 |
240 |
200 |
140 |
ZG1/2" |
115 |
85 |
65 |
4-M12 |
|
|
32 |
260 |
220 |
140 |
ZG1/2" |
135 |
100 |
78 |
4-M16 |
|
|
40 |
300 |
280 |
208 |
ZG1/2" |
145 |
110 |
85 |
4-M16 |
|
|
50 |
320 |
300 |
220 |
ZG1/2" |
160 |
125 |
99 |
4-M16 |
|
|
80 |
380 |
380 |
280 |
ZG3/4" |
200 |
160 |
135 |
8-M16 |
|
|
100 |
430 |
380 |
280 |
ZG3/4" |
220 |
180 |
155 |
8-M16 |
|
|
150 |
500 |
550 |
410 |
ZG3/4" |
285 |
240 |
210 |
8-M20 |
|
|
200 |
600 |
600 |
430 |
ZG3/4" |
340 |
295 |
265 |
12-M20 |
|
|
250 |
700 |
750 |
460 |
ZG1" |
405 |
355 |
310 |
12-M24 |
|
|
300 |
820 |
880 |
520 |
ZG1" |
460 |
410 |
375 |
12-M24 |
|
|
铸 造 体 |
50 |
270 |
210 |
180 |
ZG1/2" |
160 |
125 |
99 |
4-M16 |
|
80 |
330 |
265 |
200 |
ZG3/4" |
200 |
160 |
135 |
8-M16 |
|
|
100 |
380 |
310 |
250 |
|
220 |
180 |
155 |
8-M16 |
|
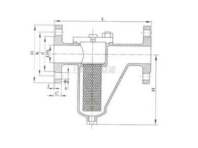
U型管道过滤器结构示意图:
U型过滤器维护与保养:
1、过滤器的核心部位是过滤器芯件,过滤芯由过滤器框和不锈钢钢丝网组成,不锈钢钢丝网属易损件,需特别保护;
2、当过滤器工作一段时间后,过滤器芯内沉淀了一定的杂质,这时压力降增大,流速会下降,需及时清除过滤器芯内的杂质;
3、清洗杂质时,特别注意过滤芯上的不锈钢钢丝网不能变形或损坏,否则,再装上去的过滤器,过滤后介质的纯度达不到设计要求,压缩机、泵、仪表等设备会遭到破坏;
4、如发现不锈钢钢丝网变形或损坏,需马上更换。- 上一篇:单接管呼(吸)阀的尺寸、原理及使用说明 2017/5/24
- 下一篇: 高寒地区储罐附件之液压安全阀的选用与维护 2017/5/22
