管道阻火器的原理和结构,管道阻火器的检测方法
不锈钢管道阻火器
石油和石油产品储罐及其它燃气储罐的进出口处、呼吸阀处、安全泄压阀等处及其附近区域内常含有大量易燃气体这些气体与空气混合在一起就可以形
成局部燃烧或爆炸的环境。当遇到雷击、明火或其它各种偶然情况产生的点火因素时就有可能点燃局部预混气并且火焰将沿未燃预混气的分布方向传入
储罐内从而引起储罐爆炸等灾难性的事故。所以我们必须在储罐的有关部位安装阻火器以防止外部的火焰传入储罐。
1、管道阻火器的原理和结构:
管道阻火器的工作原理主要是基于火焰通过狭窄通道时的熄灭现象来研究的。大量的实验研究结果表明如果狭窄通道的直径小到一定程度,火焰在这种
小通道中传播一段距离后便会自动熄灭也被称为淬熄。能使火焰发生淬熄的通道直径称为淬熄直径通常用Dq来表示。火焰在具有淬熄直径的通道上传播
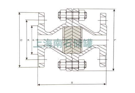
到熄灭之前的那段距离称为淬熄长度通常用Lq来表示。阻火器就是根据小孔淬熄的原理来设计的。阻火器结构如下图所示它由外壳和阻火芯组成,可以
通过法兰与管道或其它设备连接,也可以有其它各种连接方式。
管道阻火器结构图
阻火器的外壳应具有较大的强度能承受爆轰引起的动高压。阻火芯形式有多种如多层金属网叠合而成的金属网式、波纹带式等。后者是目前国际上比较
通用的一种。波纹带可以采用铝合金、不锈钢或其它耐腐蚀的材料制成,波纹带与平板带叠合卷制成圆盘状制成阻火芯盘装入阻火器外壳内,就将管道
截面分割成许多小三角形截面每一个三角形孔都是一个狭窄通道。当火焰通过时就迫使管道中的火焰面通过这些狭窄通道,这些通道都满足淬熄直径的
要求于是火焰就在通过阻火芯时自动熄灭了。阻火芯的设计不仅应考虑到淬熄火焰的要求还要尽量减小气体的流阻因此在设计之前阻火器厂家应作精心
的计算。三角形截面的高度波纹高、阻火芯波纹盘厚度及阻火器内部结构的变化对于其整体阻火性能都有直接的影响。K.N.Palmar对波纹板阻火器阻火
性能作过实验研究并得到了具有应用价值的计算公式:
|
V=0.38 |
ay |
|
D2 |
其中V是临界阻火速度(m/s);
a是用分数表示的阻火器通气自由面积与阻火芯总面积之比;
Y是阻火芯厚度(mm);
D是淬熄直径。
从该公式可以估算一个设计好的阻火器的临界阻火速度。阻火器虽然并非是一个燃烧器但阻火器的设计显然应考虑到其燃烧学和爆轰学特性设计者应对
火焰及冲击波理论作详尽的了解。
2、管道阻火器的检测方法:
煤气管道阻火器是用GB13347一92的方法来检测的,试验介质使用城市煤气是严格的。GB13347一92中对管道阻火器的技术要求、试验方法(密封性和外
壳强度的水压试验和阻火性能试验)、检验规程、标志、包装、运输、贮运等均作出了明确规定。
下图是试验装置示意图。
该装置由以下几部分组成:
(1)由D、E、G、H、L组成的试验激波管;
(2)由A、F组成的点火系统;
(3)配气系统B;
(4)由C、I、K组成的火焰速度测量系统。
检测主要程序如下:
(1)将试验介质与空气按规定的混合比置入专用的混气罐内充分混合均匀后待用;
(2)将试验管抽真空放入预混气;
(3)点燃预棍气对进入阻火器前的火焰速度进行测量;
(4)观测阻火器是否阻火(仪器监测);
(5)连续、重复上述试验进行数据记录。
国际规定阻爆燃爆轰型阻火器必须能连续经受次阻爆燃爆轰试验每次必须完全阻止亚音速超音速火焰通过为合格。这里仅给定了一个范围和原则在实际
测试中应当首先明确设计要求的阻火速度而这个阻火速度值即为安全阻火速度。实际上阻火器的极限阻火速度应该比这个值高出约30%,即取安全系数
约1.3左右,以安全阻火速度为标准按上述程序连续进行次试验均阻火成功无一失败,并且每次试验的火焰速度均大于或等于安全阻火速度的设计值时则
这个阻火器的阻火性能视为合格。若连续十三次试验中有一次或几次的火焰速度低于上述值则应补做试验否则安全阻火速度值应降低到次试验中火焰速
度最低的那一次。若连续十三次试验中有一次阻火失败则即认定为阻火器不合格。若安全阻火速度值是亚音速的阻火器属阻爆燃型,若安全阻火速度值是
超音速的则阻火器属阻爆轰型。若在试验过程中发现产品质量的问题中途停止试验并采取措施进行改进则试验应重新按上述程序进行,改进前的试验数
据应该一律作废不能将改进前后的试验数据合并计算在13次之内。
- 上一篇:全天候防爆阻火呼吸阀的性能特点,安装使用、维护和选型 2017/4/12
- 下一篇:阻火器设备的现行标准分析及性能试验 2017/4/10
