管道排放呼吸阀的结构特点及安装尺寸
呼吸阀由压力阀和真空阀两者组成,安装于油罐透气管上,能随油罐内油气正负压变化而自动启闭,使货油舱内外气压差保持在允许值范围内的阀。它是维持储罐气压平衡,减少介质挥发的安全节能产品。油罐呼吸阀良好地利用了储罐本身的承压能力来减少介质排放,其原理是利用正负压阀盘的重量来控制储罐的排气正压和吸气负压。
7120/8120系列呼吸阀为排放出口接管道的压力/真空泄放阀,可以避免储罐因超压或负压而受损失,同时可以大幅减少储罐“呼吸”带来的蒸发损失。
型号说明
7120、8120重力加载式
7122、8122负压弹簧加载式
7123、8123正压/负压弹簧加载
7125、8125正压弹簧加载式
7120/8120系列呼吸阀设计特点
口径2″~12″(DN50~DN300);
7120系列呼吸阀排放口同进口,方便用户选择;
8120系列呼吸阀排放口比进口大,以增大排量;
防护网可阻止外部杂物通过入口或出口进入设备;
根据用户需要,可增加阻火器、吸入弯管、夹套、吹扫孔、衬里、除湿等功能结构;
设计、检验按API2000;
法兰标准按ANSIB16.5,根据用户要求可选用EN1092、JIS、HG/T20592~20615、GB/T9113等标准,
选用材料:铝合金、碳钢、不锈钢、其它特殊材料:

呼吸阀设定压力
|
压力设定KPa |
7120、8120 |
7122、8122 |
7123、8123 |
7125、8125 |
|
正压设定 |
0.2~6.9 |
0.2~6.9 |
6.9~103.4 |
6.9~103.4 |
|
负压设定 |
-0.2~-4.3 |
-4.3~-82 |
-0.2~-4.3 |
-4.3~-82 |
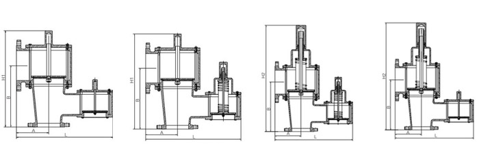
7120、7122、7123、7125系列呼吸阀结构尺寸(mm)
|
公称通径 |
50x50 |
80x80 |
100x100 |
150x150 |
200x200 |
250x250] |
300x300 |
|
L |
360 |
406 |
445 |
546 |
696 |
853 |
995 |
|
W |
200 |
200 |
230 |
280 |
345 |
406 |
485 |
|
H1 |
340 |
359 |
417 |
523 |
648 |
789 |
923 |
|
H2 |
422 |
441 |
525 |
660 |
893 |
1055 |
1257 |
|
A |
138 |
138 |
153 |
166 |
216 |
273 |
320 |
|
B |
226 |
245 |
280 |
350 |
420 |
515 |
590 |
8120、8122、8123、8125结构尺寸(mm)
|
公称通径 |
50x80 |
80x100 |
100x150 |
150x200 |
200x250 |
250x300 |
300x350 |
|
L |
360 |
435 |
494 |
641 |
798 |
940 |
1116 |
|
W |
200 |
230 |
280 |
345 |
406 |
485 |
533 |
|
H1 |
340 |
402 |
498 |
640 |
744 |
875 |
984 |
|
H2 |
422 |
510 |
636 |
884 |
1010 |
1209 |
1253 |
|
A |
138 |
153 |
166 |
216 |
273 |
320 |
381 |
|
B |
226 |
265 |
327 |
411 |
470 |
542 |
616 |
- 上一篇:压力泄放单呼阀的主要外形结构尺寸 2017/12/25
- 下一篇:真空泄放单吸阀的设计特点及结构尺寸 2017/11/28
